怎么快速解决CAD图纸打开后文字显示为问号的问题
今天,小编给大家介绍快速解决CAD图纸打开后文字显示为问号的问题的方法,希望对大家有所帮助。
具体如下:
-
1. 首先,请大家在自己的电脑中找到【CAD】图标,点击进入主界面,然后将有问题的图纸打开,很显然,图中有部分文字显示不全,而且变成问号了,效果如图。

-
2. 第二步,请大家在方框中输入“STYLE”,然后将文字样式打开,接着请大家新建一个新的文字样式,把字体修改为“宋体.shx\",然后将”大字体“选中,然后关闭文字样式即可。


-
3. 第三步,此时我们需要双击鼠标中键,还可以直接滑动鼠标滑轮,这样即可使整张图纸显示完全了。

-
4. 第四步,接下来,请大家一直按着左键,然后把全部的图纸框选中,接着它就变成了蚂蚁线。

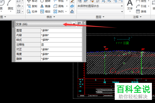
-
5. 第五步,接下来,请大家右击空白处,接着下拉页面中的【全部】按钮,将其换成【文字】即可。




-
6. 第六步,完成上述步骤后,请下拉“样式”菜单栏,然后将其选成刚刚新建的文字样式名,大家将会发现,屏幕中所有的问号都成了汉字,操作完成。

-
以上就是快速解决CAD图纸打开后文字显示为问号的问题的方法。



