UG怎么绘制键槽腔体孔加强筋?
用UG画 键槽 腔体 孔加强筋
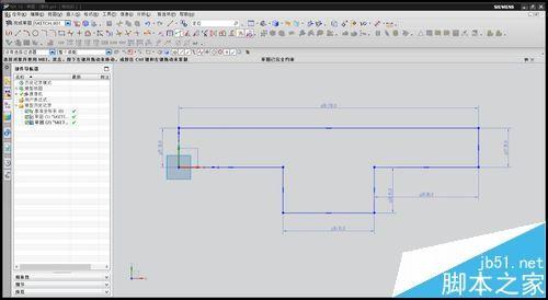
1、创建草图

2、选择拉伸之后绘制拉伸的平面


3、进行拉伸

4、创建沉孔特征,在特征面板选择孔,类型选择常规孔,绘画出四个孔的中心位置

5、之后完成草图,设置孔参数

6、创建燕尾槽插入 –设计特征—键槽,选择燕尾槽,点击贯通。之后选择实体面实体面的长边,选择贯通的起止两个面,之后确定了键槽的位置,定位选择垂直,之后选择一开始选择的实体面的边,距离为35mm,完成创建槽

7、创建三角形加强筋,打开三角形加强筋的面板,分别在上面选择第一组,第二组。之后更改修改选项,同样的方法在另一侧创建三角形加强筋

8、创建矩形腔体,插入---设计特征—腔体,之后选择矩形腔体。选择面,以侧面为水平参考,按如下参数设置 定位 19mm 75mm 之后完成




