SolidWorks怎么创建滚子链零件模型?
SolidWorks中想要创建滚子链零件,滚子链由内链板、外链板、销轴、套筒、滚子组成,既然知道组成了,下面我们就来看看详细的绘制方法。

1、直接进入正题!首先在草图上画出两个大小相同的圆,给出必要的尺寸。拉伸得到滚子。


2、在一对滚子所在平面建立草图,绘制出链板的草图,如图所示。然后拉伸得出滚子一侧链板。


3、使用镜像指令,为滚子另一侧添加链板。

4、为链板添加销轴外型。在链板上画两个圆,拉伸得到销轴外型。然后使用镜像指令得出对称的销轴外型。



5、接下来我们可以考虑一下链条的整体外型了。根据所需要的链条的尺寸,在草图中初步画出对应的整体轮廓线,然后退出草图。



6、下面我们需要再添加一对链板——外链板。画出草图,拉伸,镜像,得出了如下模型。



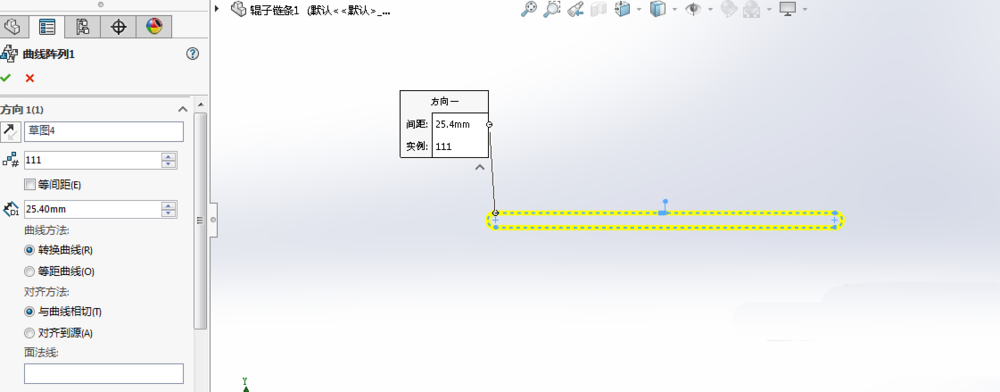
7、好了,接下来就差最后一步就大功告成了!点击插入——阵列\\镜像——曲线驱动的阵列,选中之前画好的轮廓线草图,选择实体并给定合适的参数,即可得到的滚子链。



注意:只有参数精确合适才能保证阵列出的链条完美衔接,如果出现最后两个滚子链不能准确连接在一起,那么可以重新计算得出精确的参数再建模。如果感觉计算困难,而且滚子链的精确度对读者接下来做的工作影响不大,那么也可以对模型进行小范围修改,如图。

以上就是SolidWorks滚子链零件的创建方法,希望大家喜欢,请继续关注我们。



